Fast-tracked schedule set to deliver advanced medical technology.
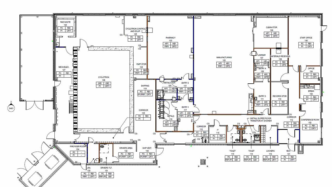
Our team is in the early stages of construction for the new 10,000-square-foot PETNET Solutions medical facility, marking an exciting step forward in the advancement of medical technology and healthcare innovation. This state-of-the-art facility is designed to support the production and distribution of critical radiopharmaceuticals used in diagnostic imaging and treatment.
Key features of the project include two (2) cyclotrons, highly specialized particle accelerators widely used in nuclear medicine to produce essential radioisotopes. In addition to the cyclotron suite, the facility will house a fully equipped pharmacy, a manufacturing department, and all necessary back-of-house support areas to ensure streamlined and compliant operations. Project completion is currently scheduled for April 2026.

- Square Footage - 10,000 SF 
- Completion - April 2026 
- Owner - Siemens Medical Solutions USA, Inc. 
- Architect 
- Project Location - Covington, LA 






